info@uccrel.com
Sat - Thu : 09 AM - 07 PM
ISO 45001:2018 14001:2015 9001:2015
Brochure:
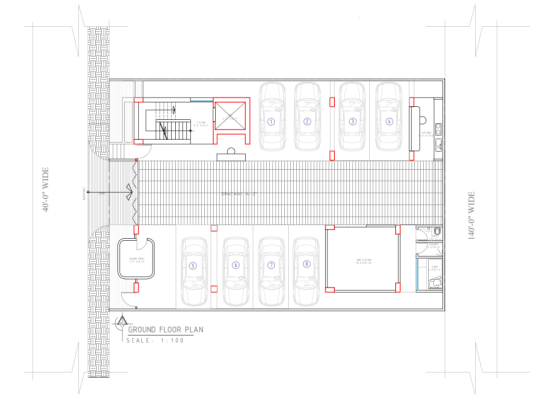
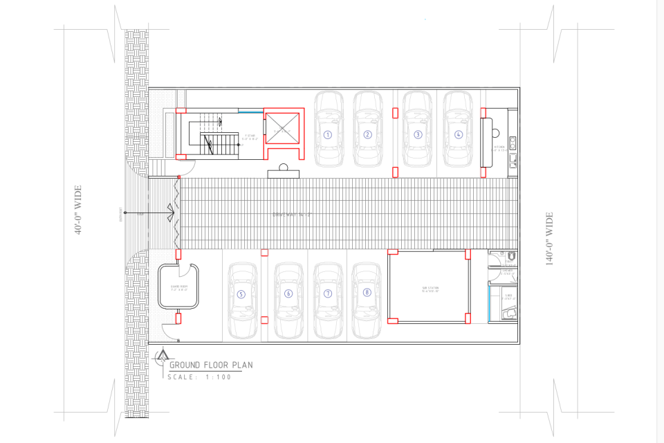
Project Brief Information:
Area

334.466 sqm

Height 2

G+M+8

Address

LOCATION :Plot-005, Rd-401A,Sectore- 14, jalshiri Abashan Dhaka

Facilities:
Power1

24/7 electricity available

Lift

High Quality Lift

Security

24/7 strong security

Image Gallery: